Skip to content

Kranarm – starr KF

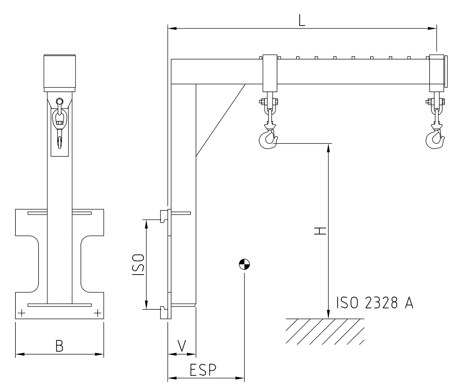
Dieser Standard-Kranarm ist vielseitig einsetzbar. Wenn Lasten von oben, die schwer zu gänglich sind, aufgenommen werden müssen, ist dieser Kranausleger die richtige Lösung. Der drehbare Lasthaken gewährt eine sichere Lastaufnahme aufgrund seiner integrierten Klappsicherung.

Produktanfrage

Previous
Next