Skip to content

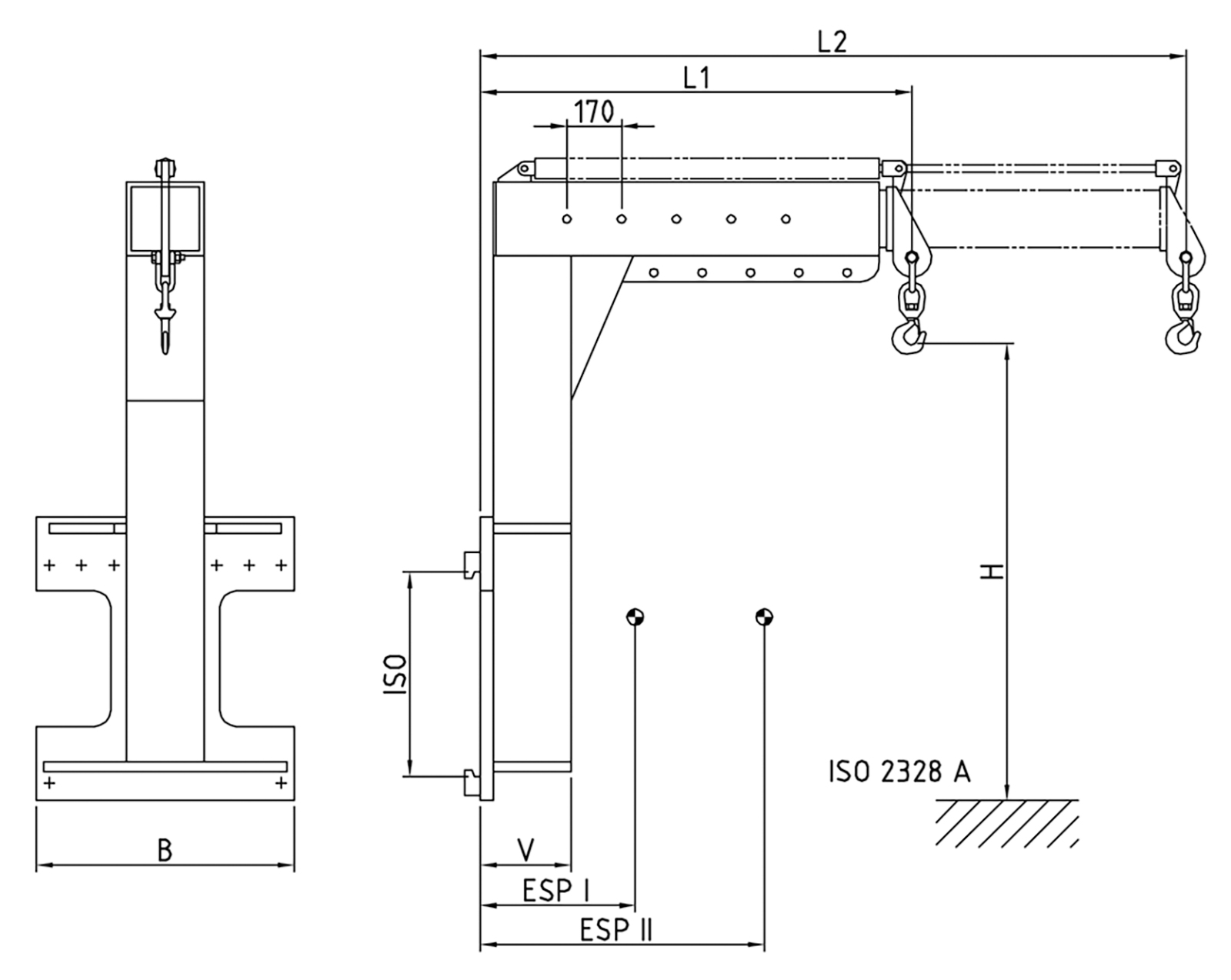
Kranarm – teleskopierbar KFT

Der teleskopierbare Kranarm bietet außer den Standardanwendungsfällen des KF weitere Vorteile. Aufgrund der Teleskopvorrichtung ist es möglich, auch bei beengten Platzverhältnissen, den Lasthaken zentrisch über die aufzunehmende Last zu führen.

Produktanfrage

Previous
Next