Skip to content

Vorbaugabelträger VG

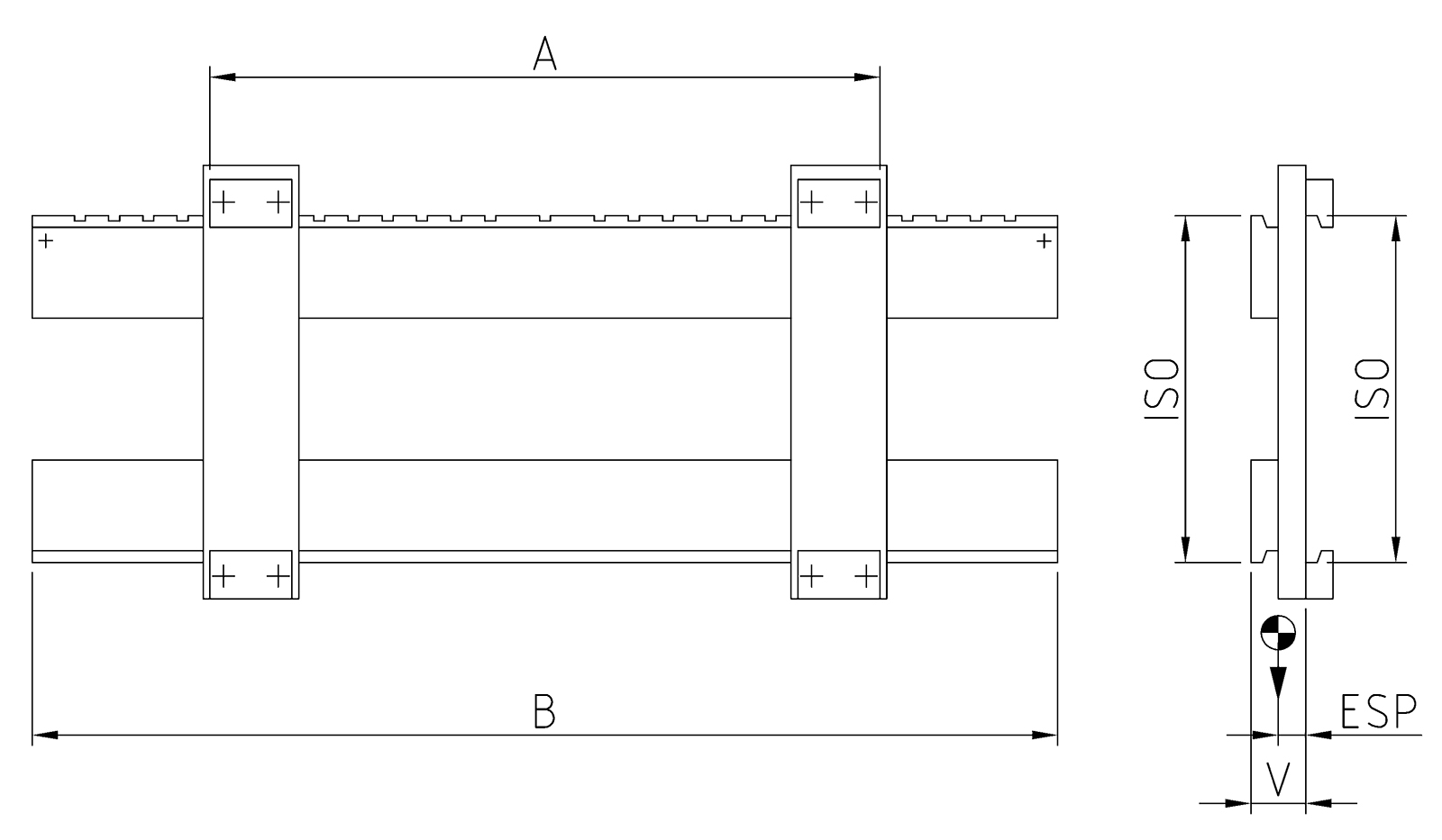
Der Vorbaugabelträger wird zur Verbreiterung des vorhandenen Gabelträgers benutzt. Der Vorbaugabel träger ist leicht zu montieren. Für Sonderanwendungen bieten wir einen Vorbaugabelträger zum Reduzieren auf die nächst kleinere- bzw. nächst größere ISO-Größe an.

Produktanfrage

Previous
Next